Es ist kein Aprilscherz!!!!
Es ist vollbracht, gestern Abend hat der Rat der Gemeinde Hohenhameln
Einstimmig den Neubau des Feuerwehrhaus in Clauen beschlossen und
auf den Weg gebracht.
Der Bauantrag wird jetzt Zeitnah eingereicht.
Wir bedanken uns bei allen Verantwortlichen in Rat und Gemeinde
über diesen Beschluss.
DANKE

Ansicht von der L411

Ansicht von der B494

Ansicht vom "Schleppweg"

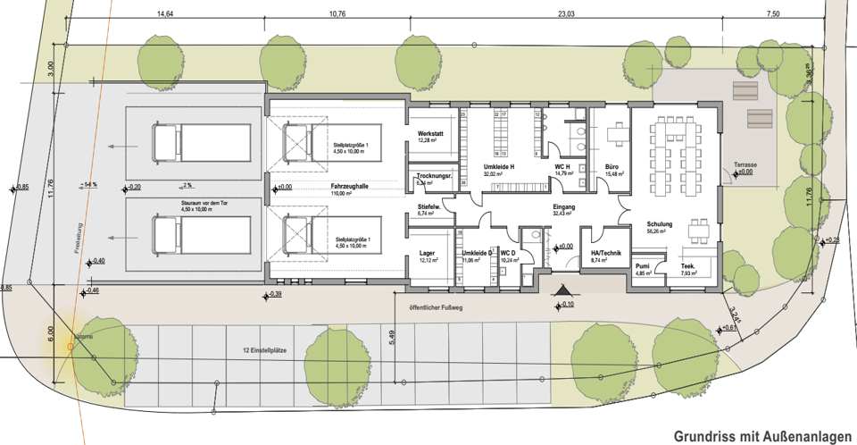
Grundriss

Hier soll es stehen, "UNSER" Feuerwehrhaus!

